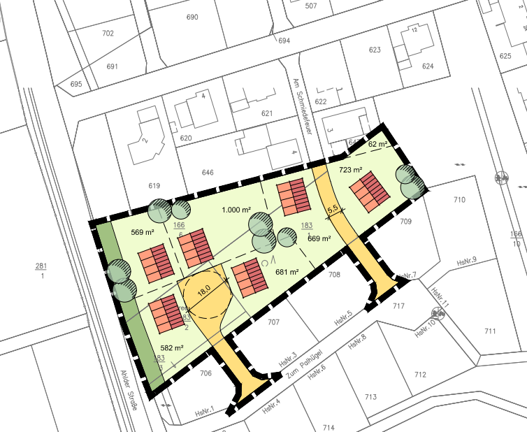
Wohnpark Palhügel-Nord zwischen Am Heimathof und Zum Palhügel
Vergabe von attraktiven Wohnbaugrundstücken im Baugebiet "Palhügel-Nord zwischen Am Heimathof und Zum Palhügel"
Die Grundstücks- und Erschließungsgesellschaft Gemeinde Emsbüren mbH vergibt attraktive Wohnbaugrundstücke in den Baugebieten „südlich Grabenweg“, „Wohnpark Palhügel-Nord zwischen Am Heimathof und Zum Palhügel“ sowie „Leschede, westlich der Lingener Straße“.
In dem Ortsplan ist die Lage des jeweiligen Baugebietes kenntlich gemacht:
Der Kaufpreis beträgt 96,00 €/m²
Hinzu kommen 3 €/m² an den Wasserverband Lingener Land (Betreiber der Kläranlage). Ferner die Kosten für den notwendigen Regenwasserübergabeschacht, der nach tatsächlichem Aufwand abgerechnet wird. Der Kaufpreis beinhaltet die Kosten der Ersterschließung im Sinne des § 127 Abs. 2 Baugesetzbuch. Sonstige Kosten, insbesondere die Kosten für sonstige Anlagen gemäß § 127 Abs. 4 BauGB, die nicht Erschließungsanlagen sind (z. B. zur Entsorgung von Abwasser und zur Versorgung mit Elektrizität, Gas, Wärme und Wasser), sind nicht im Kaufpreis enthalten und werden gesondert erhoben.
Berücksichtigt werden Bewerbungen von Bewerber/innen, die mindestens eine 10-jährige Eigennutzung (Nutzungsbindung) vorsehen und in den letzten 15 Jahren weder von der
Gemeinde Emsbüren noch von der Grundstücks- und Erschließungsgesellschaft Gemeinde Emsbüren mbH ein Grundstück erworben haben. Die Vergabe der Wohnbaugrundstücke erfolgt demnach nur an „Eigennutzer“. Eine Vermietung ist nicht zulässig.
Die bezugsfertige Bebauung der Wohnbaugrundstücke hat innerhalb von drei Jahren ab Beurkundung des Grundstückskaufvertrages zu erfolgen (Bauverpflichtung).
Bewerber/innen die bereits Eigentum an einem unbebauten Wohnbaugrundstück in der Gemeinde Emsbüren haben oder bereits in Emsbüren über selbst bewohntes Wohneigentum in Form einer Doppelhaushälfte oder eines Einfamilienwohnhauses verfügen werden bei der Vergabe nicht berücksichtigt.
Es liegen bereits zahlreiche Interessensbekundungen für die zum Erwerb zur Verfügung stehenden Baugrundstücke vor.
Weitere Interessentinnen und Interessenten können sich bei Interesse am Erwerb eines Baugrundstückes – sofern Sie sich noch nicht in die Interessentenliste eintragen lassen haben - bis spätestens zum 05. August 2020 melden.
Hinweis:
Die Erschließungsarbeiten haben bereits begonnen. Mit der Fertigstellung der Arbeiten „südlich Grabenweg“ und „Wohnpark Palhügel“ wird im August diesen Jahres gerechnet. Im Baugebiet Leschede werden diese voraussichtlich Ende des Jahres abgeschlossen sein. Dies ist bei Zuteilung/Erwerb eines Baugrundstückes bezüglich eines frühestmöglichen Baubeginns zu berücksichtigen.




