Leschede -"Glatzer Straße"
Glatzer Straße
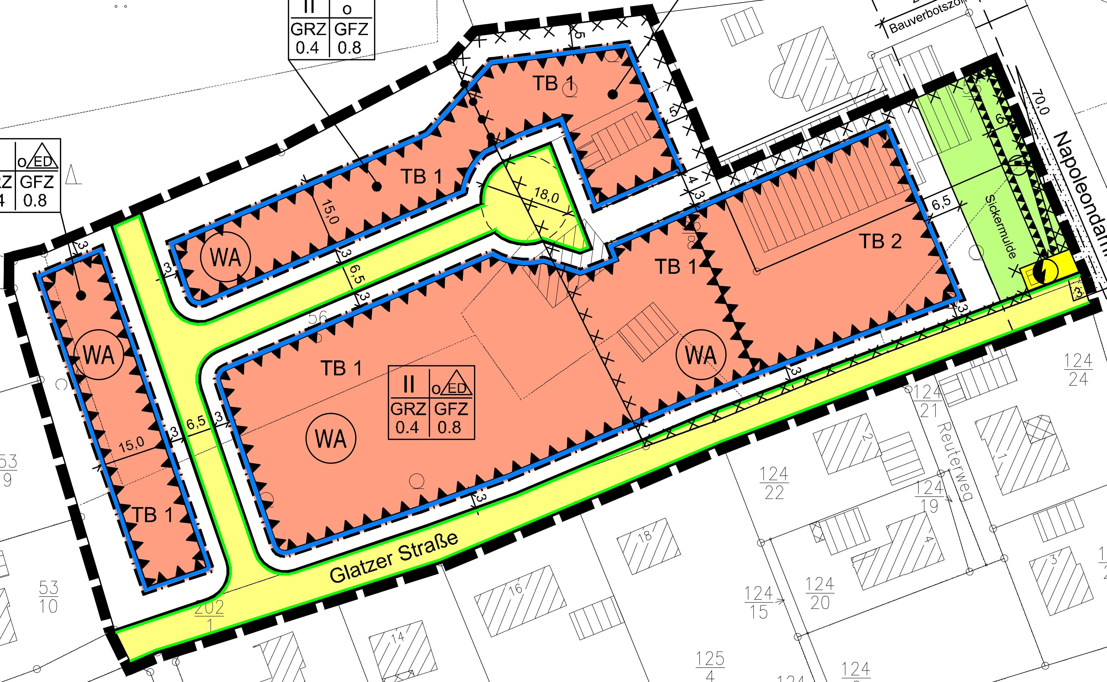
Der Rat der Gemeinde Emsbüren hat den Bebauungsplan 128 „Baugebiet nördlich der Glatzer Straße“ beschlossen. Damit wurden die planerischen Voraussetzungen für neue Baugrundstücke im Ortsteil Leschede geschaffen. Insgesamt standen 14 Grundstücke in Leschede für eine Vergabe durch die Grundstücks- und Erschließungsgesellschaft Emsbüren (GEG) zur Verfügung.
Die beiden noch zu erwerbenden Baugrundstücke an der Glatzer Straße haben eine Größe von 525 und 633 m². Der kalkulierte Kaufpreis für die voll erschlossenen Grundstücke an der neuen Erschließungsstraße „An der Kapelle“ liegt bei 75,31 EUR/m². Die Grundstücke an der Glatzer Straße sind etwas günstiger, da diese bei einem derzeit noch nicht absehbarem endgültigen Ausbau der Glatzer Straße voraussichtlich noch zu einem Erschließungsbeitrag herangezogen werden.
Die Vergabe der Grundstücke erfolgt ausschließlich an Eigennutzer. Die künftigen Erwerber müssen auf den Grundstücken innerhalb von drei Jahren ein bezugsfertiges Wohnhaus errichten und sich verpflichten, dieses selbst zu bewohnen.
Übersicht freie Baugrundstücke BG Glatzer Straße
Bebauungsplan Nr. 128 Wohngebiet nördlich der Glatzer Straße
Ihr Ansprechpartner




