Gleesen
neue Baugrundstücke in Gleesen
Neben der Wohnbauentwicklung im Ortskern sollen in der Gemeinde Emsbüren auch in den Ortsteilen attraktive Wohnbaugrundstücke angeboten werden.
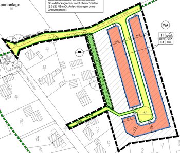
Das Neubaugebiet - Bebauungsplan Nr. 125 „Baugebiet Gleesen, östlich der Gleesener Hauptstraße“ - umfasst insgesamt zwölf Baugrundstücke in sehr naturnaher ruhiger und landschaftlich reizvoller Lage zwischen Ems und Dortmund-Ems-Kanal. Die Grundstücksgrößen liegen zwischen 640 m² und 1.103 m². Der Straßenname für die Erschließungsstraße des Neubaugebietes lautet „Zum Kuckshörn“. Der Grundstückskaufpreis beträgt voll erschlossen 42,50 €/m² inklusive der Kosten für den Straßenausbau. Hinzu kommen die Kosten für den Regenwasserübergabeschacht, der nach tatsächlichem Aufwand abgerechnet wird und der an den Wasserbeschaffungsverband Lingener Land zu zahlende Baukostenzuschuss für den Schmutzwasserkanalanschluss in Höhe von derzeit 3,00 EUR/m².
Die Vergabe der Grundstücke erfolgt nur an Eigennutzer.
Einen Übersichtsplan über die noch zum Erwerb zur Verfügung stehenden Grundstücke sowie der Bebauungsplan stehen als Download bereit:
Gleesen-Lageplan reservierte Grundstücke
Bebauungsplan Nr. 125 "Baugebiet Gleesen östlich der Gleesener Hauptstraße"
Ihr Ansprechpartner




